Geri Dön / Ürün Detayları
√
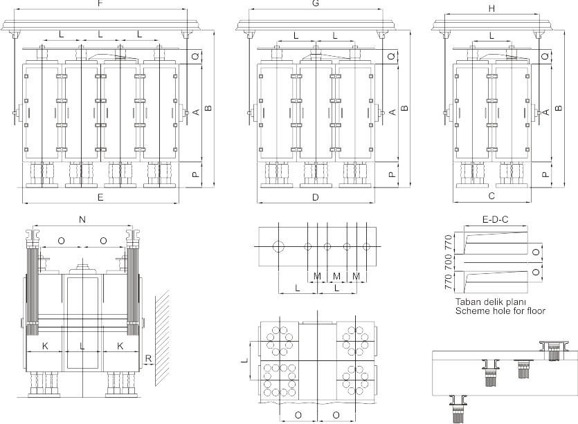
ELEK ASKI BAĞLANTI ŞEKİLLERİ
Çeşitli askı bağlantı şekilleri sayesinde mimimum kat yüksekliklerinde çalışma imkanı mevcuttur. Kirişlerin pasaj aralarına getirilmesi sayesinde, çeşitli aks aralıkları mesafesinde her büyüklükte eleğin çalışma imkanı sağlanmaktadır.
Aşağıdaki tablonun üzerine tıklayarak teknik bilgileri daha büyük görüntüleyebilirsiniz...
» Teknik Çizim
